Roodborst, Groenling & Steenloper

Roodborst Appartement M Steenloperstraat 235

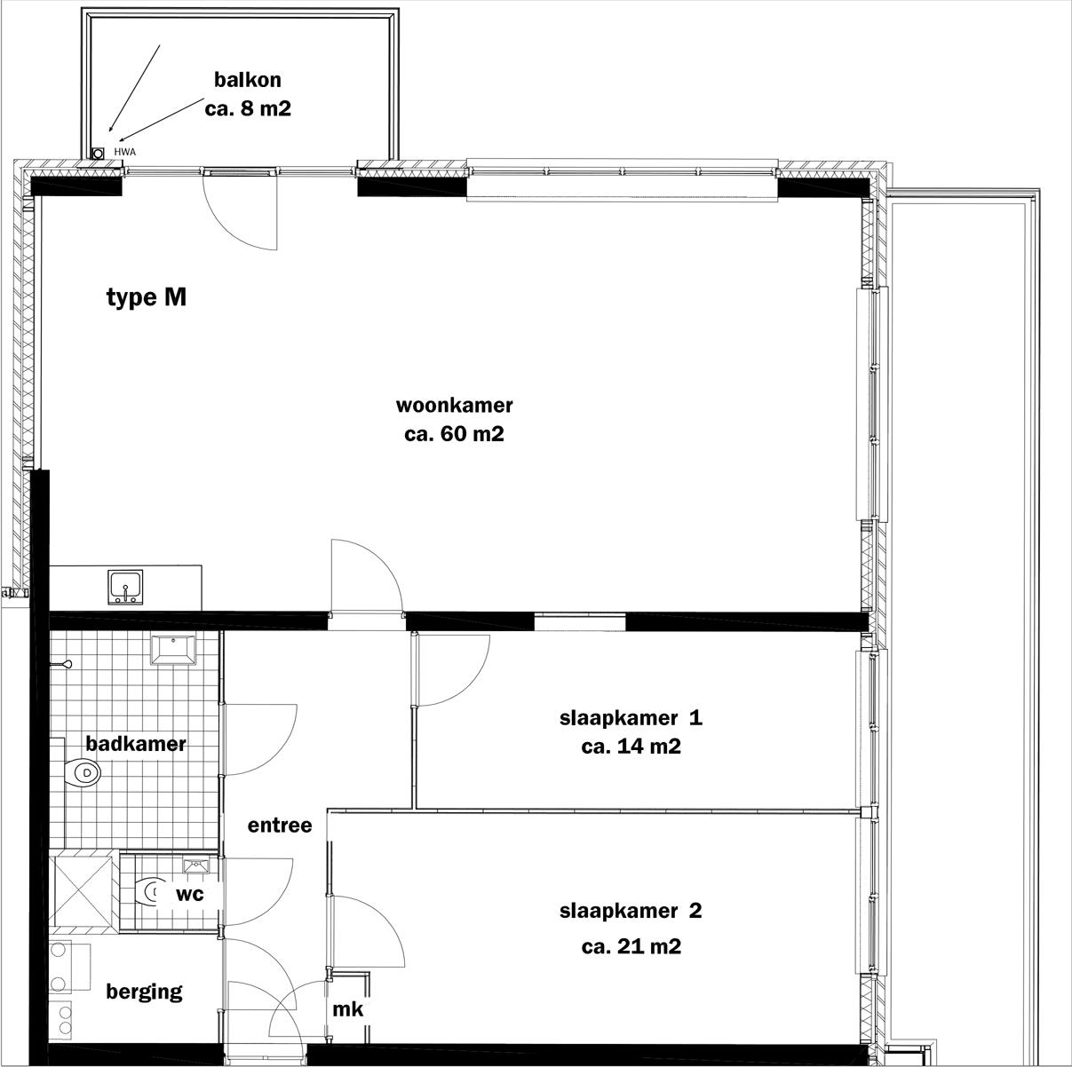
  • image-1

Beschikbaar per 1 januari 2026

Belangrijke data: (Let op! U dient aan alle vereisten te voldoen!)

  • Reactietermijn: woensdag 1 oktober t/m donderdag 2 oktober
  • Contact woonconsulent met kandidaten: vrijdag 4 oktober
  • Bezichtigingsdata: 6, 7, 8 of 10 oktober (onder voorbehoud)
  • Ondertekening huurovereenkomst: woensdag 15 oktober (onder voorbehoud)

Ligging appartement

8e etage met een balkon op de westzijde

Indeling appartement

  • Huiskamer ± 60m²
  • Badkamer met toilet en douche
  • 24 uurs alarmering

Verdere informatie

  • Veel welzijnsactiviteiten binnen handbereik
  • Hoog sociaal netwerk
  • Restaurant
  • Brasserie
  • Vitaalstudio
  • Op 25 meter van het centrum
  • Met bus en metro zo in Rotterdam
  • Kapsalon
  • Bibliotheek
  • Theater
  • Horeca
  • Veilige omgeving
  • Bij indicatie zorg direct beschikbaar
  • Zorgcoordinator
  • Kleinschalig thuiszorgteam
  • Bij geldig rijbewijs en eigendom auto, een eigen parkeerplaats
Inschrijven in dit appartement